КОНСТРУКЦИЯ ЗА МОНТАЖ НА СОЛАРНИ ПАНЕЛИ:

Предлагаме три вида системи за монтаж на соларните панели, като в зависимост от условията ви можете да подберете най-подходящата за Вас. Конструкцията е алуминиева, което гарантира дългия живот и ниския екологичен орпечатък.

Високото качество на изработката и добре оформените взаимосъвнестими компоненти гарантират много по лесно и бързо извършване на монтажа, което ще намали разходите за вас и за вашите клиенти. Всеки един от сглобяващите се елементи е добре премислен за удобство и предвижда тежките условия с които се сблъскваме на обектите.

Системите ни за монтаж изискват точна преценка на количествата поради което молим да се свъжете с нас, за консултация и пресмятане на офертата.

По долу ще намерите точни описания и схеми за начина на монтаж



Покривна конструкция без наклон

-    Алуминиева конструкция за монтаж върху керемиди, термо панели или ламарина, която следва наклона на покрива

Energy Flow Tile roof System.jpg

- Икономически изгодно решение

- Бърз и лесен монтаж

- Интегриране към съществуващата конструкция на покрива


Конструкция за Керемиди

- Подходяща за монтаж върху дървен покрив с керемиди

- Надежден и бърз начин

- Решение което не нарошава работота на керемидите


Конструкция за сандвич панели и ламарина

- Надежно решение на перфектна цена

- Бърз монтаж

- Алумиева конструкция



Покривна конструкция с наклон 15* до 30*

За повече информация за наклонен монтаж
Energy FlowR52 Tilt Solar Roof Mount-1.jpg

- Постигане на ъгъл от 10 до 30 градуса

- Гъвкаво решение за различни повърхности

- Лесен и икономичен вариант


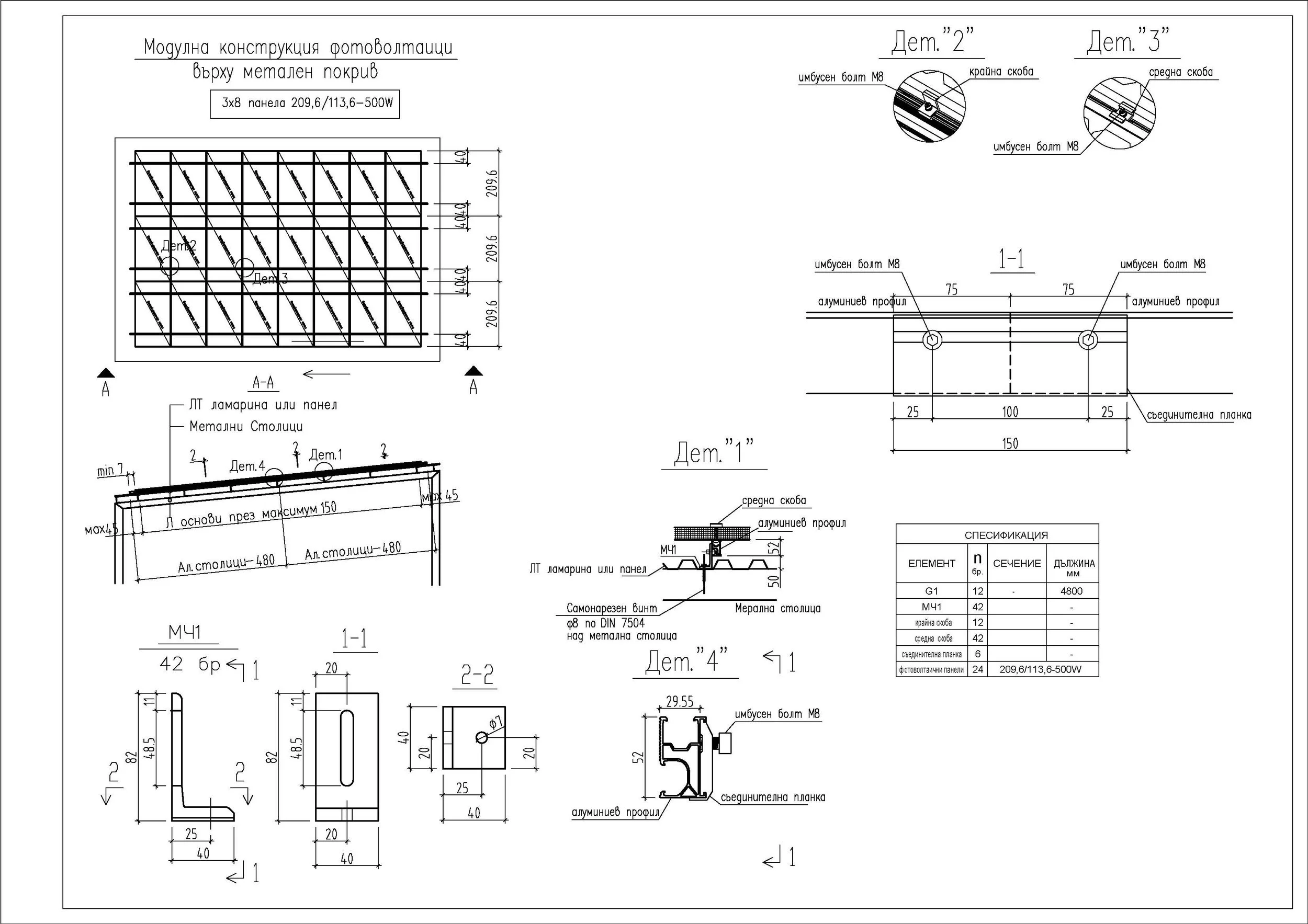
Баластна конструкция с наклон

- Алуминиева конструкция за монтаж върху равен покрив с тежести без пробиване на повърхността

Energy Flow Ballasted-2.jpg

- Дава 15 градуса наклон

- Красиво решение

- Няма нужда от пробиване

Баластна конструкция тип 1 външен крак

- Чертеж на Тип 1

- Тип 1 е за панели с дължина до 2м

- Възможен монтаж само на Юг или Изток-Запад


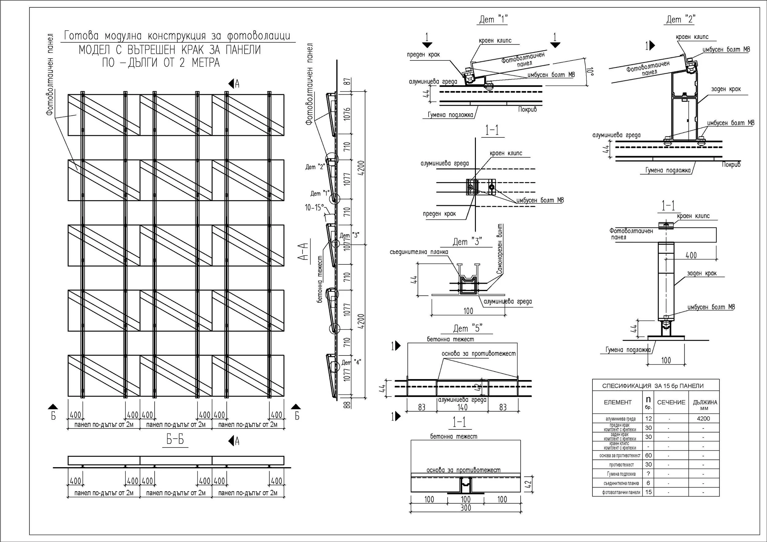
Баластна конструкция тип 2 вътрешен крак

- Чертеж на Тип 2

- Тип 2 е за панели с дължина над 2м

- Възможен монтаж само на Юг или Изток-Запад


Алуминиева конструкция за наземен монтаж с наклон 33 градуса

Energy Flow Ground Mount System.jpg

- Бърз монтаж

- Позволява монтаж без отливане на бетонна основа

- Изцяло алуминиеви компоненти

- Изгодно решение за постигане на оптималния 30 градуса наклон

Наземна конструкция информация

- Земните винтове позволяват монтаж без бетон

- Бърз монтаж покриващ изискванията за устойчивост

- Възможност за различни комбинации


Алуминиева конструкция изграждане на Соларен Паркинг

- Лека и бърза за сглобяване конструкция

- Система за плътно закриване без течащи зони

- Рентабилен вариант за покриване на паркоместа

Соларен Паркинг Информация
Соларен паркинг чертеж